Telefon: +36/20-954-5957

Ingatlan leírása

A ház Szentendre Pismány városrész aljában helyezkedik el, Dél-nyugati tájolású, felső szintjéről tökéletes panoráma panoráma nyílik Budapestre illetve a pilisi hegyekre.

A házat körülölelő telek egy gyönyörű beállt kert, különleges egyedi növényekkel, fákkal, cédrusokkal. gyerek mászóka, játszó is van benne. Garázs nincs,de a kocsi beálló minimum 6 autó részére elegendő.

Villa jellegű ami azt jelenti, hogy az alsó szinten nagy belmagasság illetve nagy egybe nyitható terek vannak.

A nappali és a kert szerves kapcsolatát egy nagyméretű terasz biztosítja.

Minőségi alumínium nyílászárókkal (Internorm) felszerelt, a fűtés-melegvíz ellátását pedig Buderus gázkazán szolgáltatja.

A felső szinten lévő hatalmas nappaliból 2 önálló nagyméretű apartman nyílik. A széf is itt található.

A ház központi helyén elhelyezett kémény kandalló beépítését is lehetővé teszi.

A konyhában az építés idejének megfelelő Ikea bútorzat és konyhai gépek vannak.

Biztonságról riasztórendszer, a kert öntözéséről Toro öntözőrendszer gondoskodik.

Amennyiben a kert méretét még növelni szeretnénk, lehetőségünk van egy 150 m2-es telek kedvező árú megvásárlására is.

Részletes adatok

Általános adatok

Ár:

79,-MFt

Alapterület:

250 m2

Telek terület:

1.2500 m2

Ingatlan típusa:

kúria jelleg

Ház típusa:

egy családos

Ház stílusa:

modern

Épület állapota:

Építés éve:

1999

Felújítás éve:

----

Szintek száma:

2

Garázs

0

Fedett parkolóhely:

0

Nyított parkolóhely:

4

Bejárat

1

Nappali:

2

Étkező:

1

Hálószoba:

4

Teljes fürdőszoba:

2

Fél fürdőszoba:

0

WC (önálló)

0

Gardróbszoba

1

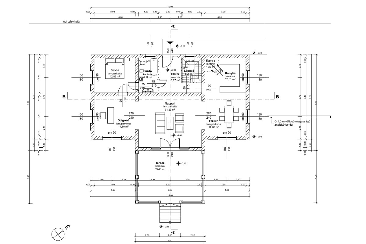
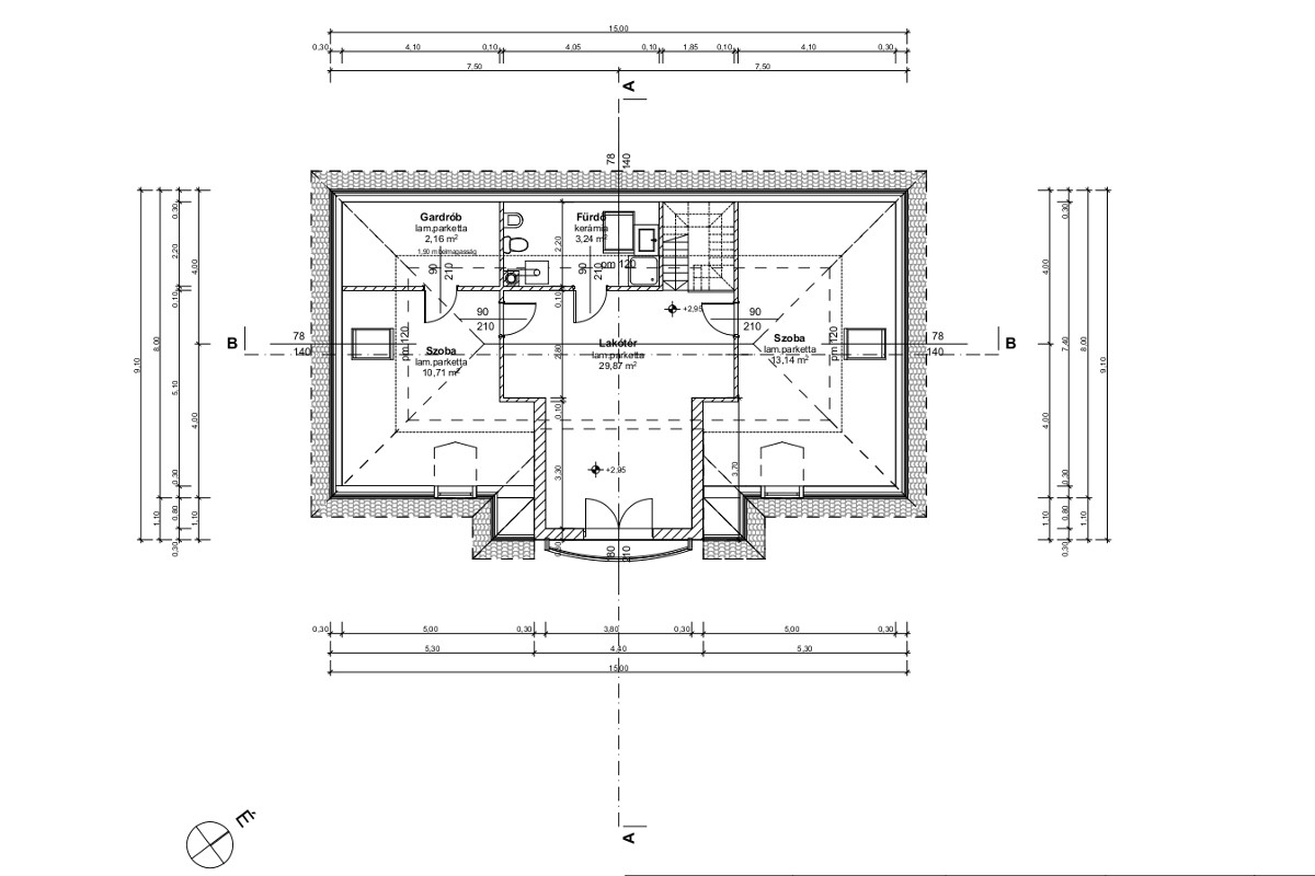
Helyiség kimutatás

Földszint

Szoba:

12,89 m2

Fürdő:

6,11 m2

Előtér:

8,97 m2

Dolgozó

14,8 m2

Nappali:

31,23 m2

Étkező:

14,8 m2

Konyha

12,51 m2

Terasz:

33,43 m2

Emelet

Nappali:

29,87 m2

Szoba

14,71 m2

Szoba:

13,14 m2

Fürdőszoba:

3,24 m2

Gardrób:

3,24 m2

Külső leírás

A külső szerkezeti falak Porotherm 38 cm-es falazóelemből készültek hőszigetelő vakolat nélkül.

A ház tetőszerkezetét Ausztriában gyártott Tondach tetőcseréprendszerrel feddték le..

A csapadékvíz elvezetéséről az UV-álló anyagában színezett műanyag ereszcsatorna rendszer gondoskodik.

A födémszerkezet 20 cm-es vasbeton födém, amely 18 cm-es vasbeton „I gerendával készült és 8 cm vastag lépéssálló kőzetgyapottal burkolt.

Pince nem került kialakításra.

A földszinten találhatunk egy vasalt aljazatbetonból készült 46 m2-es kültéri járólappal burkolt, kovácsoltvas korláttal körbevett külső erkély.

A külső nyílászárók közül az ablakok és az erkélyajtók két rétegű hőszigetelő üveggel 65 mm-es profilszélességgel rendelkező fehér-színű Kömmerling műanyag nyílászárók. Az ablakoknál műkőből készült könyöklőket találunk. A ház bejáratát egy kanadai biztonsági fém bejárati ajtó védi.

A nagy ablakfelületek anyagában eloxált kézi-vezérlésű Internorm alumínium zsalugáterek fedik.

Garázs nincs, a z udvaron hat személygépkocsi számára van kialakított parkolási lehetőség.

A telek pont-hegesztett háló kerítéssel rendelkezik, bejárati ajtó nincs, de a tervezett úszókapuhoz a szükséges kiállások már elkészültek.

Az ingatlan nincs csatornázva, de egy 18 m3-es emésztő könnyedén ellátja a szükséges feladatokat.

Belső leírás

Belső szerkezeti falak 38-as Porotherm kitöltő téglafalazattal, míg a térelválasztó falak 12 cm-es tömör téglából készültek.

A beltéri ajtók fehér teli tömör farostlemez.

A konyha „L” alakban Ikea konyhabútorral és AEG beépített elektromos főzőlappal és sütővel szerelt. A páraelszívásról egy nagy teljesítményű kürtős páraelszívó gondoskodik. A mosogató tálca egy mély és egy fél mély mosogatóból áll. A konyha még egy tizenkét terítékes Bosch beépített mosogatógéppel rendelkezik. A hűtő-fagyasztó szekrény nem beépített.

A fürdőszobák kialakítása és dizájnja az építés évének megfelelő. A egyik fürdőszoba csak zuhanypanellel és Wc-vel ellátott, míg a másik egy fürdőkáddal, WC-vel és bidével felszerelt.

Az emeletre kétkarú fém vázas, burkolat nélküli lépcső vezet kovácsoltvas korláttal.

A felső szintten lévő nappali laminált padlóburkolattal rendelkezik.

A leányszobából egy külön gardrób is nyílik.

A nappali padlóburkolata szintén laminált.

A nappaliba jelenleg csak a jővőbeli kandalló kéménye van megépítve.

Az ingatlan a kiépített elektromos teljesítménye 3 x 25 A.

A ház biztonsági mozgásérzékelős, zónákra bontható, programozható biztonsági rendszerrel rendelkezik, amely a Pilis Securytihez van bekötve.

A telefonhálózat és a központi TV hálózat védőcsövezéssel és vezetékezéssel csillagpontos kábelezési struktúrával készült.

Kert leírás:

Az ingatlan nagy kertje az átgondolt térkialakításnak köszönhetően impozáns látványt nyújt.

A jól megválasztott szoliter növények a jól elkülönülő kerti funkciók a hatalmas „szabad” zöld pázsit különleges hangulatot teremtenek.

A jelenleg 15 m magas Atlasz Cédrus teljes kifejlett állapotában elérheti akár a 30 m-es magasságot is.

A csodálatos az Atlasz Cédrushoz képest „kisméretű” nagy díszítőértékű sötétbordó levelű Vérszilva fa magassága teljes kifejlett korában sem haladja meg az 5 m-t.

Ugyancsak meg kell említenünk amint a kert büszkeségét a gyönyörű pálmaliliomot és a juharfát is.

A gondozott sziklakertben egy avatott hozzáértő számára még sok lehetőség nyílhat meg.

A nagy kert öntözéséről a Toro öntözőrendszer gondoskodik, amelyet akár az előszobából is vezérelhetünk.

A kertben a pázsit védelme miatt tipegők vannak elhelyezve.

Fűtés-Hűtés leírás

Az ingatlan hőenergiáját a kazánházba telepített 32Kw-os Buderus G124-es kazán biztosítja külön 150 l-es meleg-víztároló rendszerrel és Fillo szivattyúkkal.

Légkondicionálás nincs.

Telek méret megváltoztatatása

Amennyiben az új tulajdonos a mostaninál nagyobb kertet szeretne, akkor lehetősége van a szomszéd 150 m2nagyságú telek kedvező árú megvásárlására.

Így a telek mérete 1.400 m2-re növekedne.

Általános Iskolák

  • II. Rákóczi Ferenc Általános Iskola és Gimnázium
  • Agy Tanoda Magyar- Angol Két Tanítási Nyelvű Általános Iskola
  • Barcsay Jenő Általános Iskola
  • Dunakanyar Magániskola
  • Izbégi Általános Iskola
  • Szent András Általános Iskola
  • Templomdombi Általános Iskola

Gimnáziumok

  • II. Rákóczi Ferenc Általános Iskola és Gimnázium
  • Ferences Gimnázium
  • Móricz Zsigmond Gimnázium
  • Petzelt József Szakgimnázium
  • Református Gimnázium
  • Szakkay József Szakgimnázium
>

Értékelés

Külső
65%
Belső
70%
Kert
75%
Fűtés
70%

Ingatlan képek

Térkép