Telefon: +36/20-954-5957

Ingatlan leírása

Eladásra kínálunk Szentendrén, Pismány aljában egy 510 m2-es családi villát, 2005 m2-es telekkel.

Az ingatlan egyik legfontosabb jellemzője, hogy a villa az utcáról nem látható, így tökéletesen védve vagyunk a kíváncsi szemek elől.

A villához a főkaputól mintegy száz méter hosszú magánút vezet, melyet kétoldalt igényes növényzet vesz körbe. A magánút végén pillanthatjuk meg a villa egyedülállóan impozáns látványát, amit a vörösfenyő faburkolat, a faragott bogdányi kő és a Creaton kerámia tetőcserép harmonikus illeszkedés még jobban kiemel.

A villa teljes mértékben luxus kivitelűnek tekinthető amit nemcsak a felhasznált anyagok minősége hanem a gondos belsőépítészeti tervezés is alátámaszt.

A Hofstadter külső belső tömör-fa nyílászárók, a Rehau központi porszívórendszer, a Buderus kazán, a Brühl konyabútor és az Artemide világításrendszer és a hővisszanyerős Vertush szellőzőrendszer jellemzi a beépített minőséget.

A villa hatalmas beltéri medencéje és a négy személyes cédrus szauna visszahűtő medencével is a tulajdonosok felfrissülését és kényelmét szolgálja.

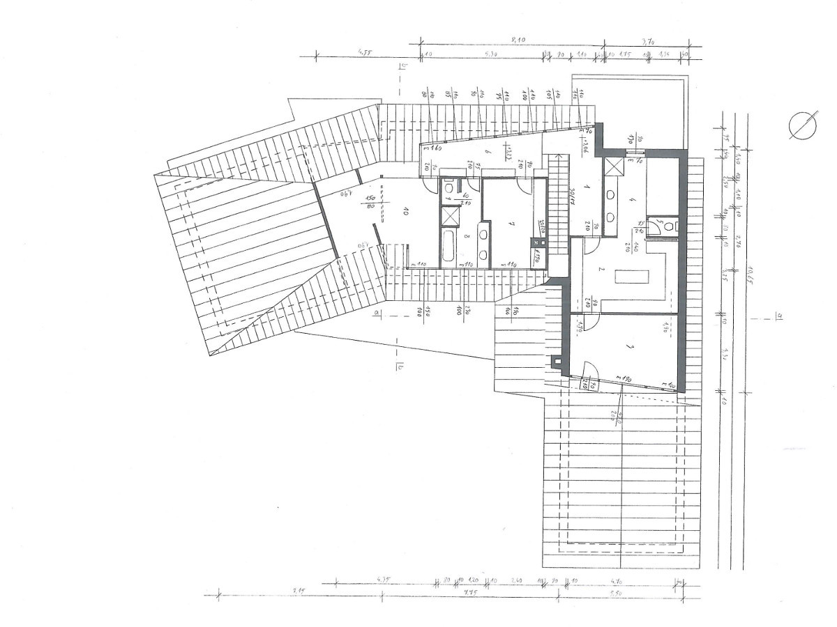
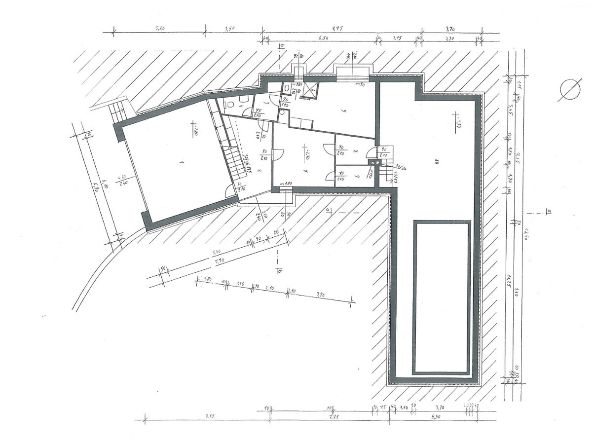
A 166 m2-es pinceszinten mosdó+wc, dolgozó szoba, tároló, garázs, zuhanyzó, mosókonyha, kazánház található. A 213 m2-es helyezkedik el az előszoba, mosdó+wc, étkező, konyha, kamra, nappali, beltéri medence, pihenő-öltöző tér és a szauna. Az emeleten a szülői lakosztály gardróbbal, egy gyerekszoba és két darab WC található.

A villához tartozó hatalmas ápolt kertben a dísznövényeken kívül „beállt” gyümölcsfák is vannak. A kert öntözéséről egy programozható Toro öntözőrendszer gondoskodik.

Amennyiben a kert méretét még növelni szeretnénk, lehetőségünk van egy 1500 m2-es telek kedvező árú megvásárlására is.

Részletes adatok

Általános adatok

Ár:

189,-MFt

Alapterület:

493 m2

Telek terület:

2.300 m2

Ingatlan típusa:

luxusvilla

Ház típusa:

egy családos

Ház stílusa:

modern

Épület állapota:

kiváló

Építés éve:

1999

Felújítás éve:

----

Szintek száma:

3

Garázs

1

Fedett parkolóhely:

2

Nyított parkolóhely:

6

Bejárat

2

Nappali:

1

Étkező:

1

Hálószoba:

4

Teljes fürdőszoba:

3

Fél fürdőszoba:

1

WC (önálló)

5

Gardróbszoba

1

Helyiség kimutatás

Pinceszint

Garázs:

40,46 m2

Előszoba:

16,12 m2

Közlekedő:

3,78 m2

Mosdó-WC:

2,38 m2

Dolgozó szoba:

17,00 m2

Zuhanyzó:

2.64 m2

Mosókonyha:

13,31 m2

Közlekedő:

4,36 m2

Kazán:

7,87 m2

Tároló:

58,79 m2

Földszint

Előszoba:

18,39 m2

Mosdó-WC:

3,25 m2

Étkező:

19,64 m2

Konyha

20,23 m2

Nappali:

47,68 m2

Közlekedő:

16,33 m2

Uszodatér

65,23 m2

Pihenő-öltöző tér

16,66 m2

Mosdó-WC

2,60 m2

Szauna

3,74 m2

Tetőtér

Közlekedő:

7,63 m2

Gardrób:

18,72 m2

Szoba:

15,73 m2

Fürdőszoba:

11,54 m2

WC:

0,35 m2

Közlekedő

7,79 m2

Szoba

13,86 m2

Fürdőszoba-WC

4,68 m2

Szoba

32,52 m2

Külső leírás

Külső szerkezeti falak - melyek a monolit öntöttt födémre támaszkodnak - 38 cm-es falazóelemből épültek amelyekett hőszigetelő vakolatba ágyazott 15 cm-es vastagságú faragott bogdányi kővel burkoltak, így a teljes falvastagság vastagsága 52 cm.

A külső látható fa burkolatok vörösfenyőből készültek és harmonikusan illeszkednek a faragott bogdányi kőhöz és a Creaton kerámia tetőcserepekhez.

A tető bádogosmunkái és a homlokzati lefolyócsövek horgany bádogozással készültek, az egymáshoz korcoltan kapcsolódó bádogos szerkezetek alatt alátétszőnyeg biztosítja a megfelelő átszellőzést.

A külső nyílászárók közül az abalakok két rétegű hőszigetelő üveggel 65 mm-es profilszélességgel Hofstädter által gyártott borovi fenyőből készültek (A1-es kategória), míg a tömörfa biztosági bejárati ajtó szintén Hofstädter gyártású 5 ponton záródó kilincsel, zárbetéttel.

A nappali és az előszoba nagy üvegfelületeit a kívülről vörösfenyőből készült mozgatható zsalugáterek óvják a népfénytől.

A fából készült elektromos vezérlésű Hörmann garázsajtó biztosítja a garázs kényelmes használatát.

A telek drótfonattal körbezárt kerítéssel rendelkezi a bejárati kapu automata távarányítással működik. A látogatókat videós kaputelefonon lehet ellenőrizni

Belső leírás

Belső szerkezeti falak 38-as hőszigetelő üreges, kitöltő téglafalazattal míg a térelválasztó falak 25 és 10 cm-es hanggátló téglából készültek.

A beltéri ajtók Hofstadter egyedi gyártású tömör ajtók, körteszínű borovi fenyő furnérral.

A villában Rehau központi porszívórendszer került kiépítésre.

Mindegyik szinten fapadló vagy lapburkolat található

A konyha Brühl modern stílusú tömör-fa konyhabútor egyenes hosszú rozsdamentes mattkróm fogantyúkkal, az üveges elemek fogantyú nélküli alumínium kerettel. Az „L” alakú konyha közepén egy bárpultos konyhasziget két bárszékkel és egy mozgatható zsúrkocsi található.
Konyhatechnológiai szempontból a teljesen gépesített konyha balkezes.
A beépített Miele készülékek: gáz főzőlap, páraelszívó,12 személyes mosogató, beépített sütő, beépített mikrohullámú sütő és hűtő-fagyasztó szekrény.
A konyha világításáról az olasz Artemide világítótestek gondoskodnak.
A két medencés silgránit mosogató Hangsgrohe kihúzható zuhanyfejes csaptelep.

A fürdőszobák és a WC-k egységesen Villeroy & Boch szaniterekkel, Groge és Hangsgrohe csaptelepekkel és Artemide lámpákkal szereltek.

Az emeletre egykarú faburkolatú alulról gyámolított lépcsőn juthatunk fel.

A nappaliba kandalló szolgáltatja a kellemes hangulatot a téli estéken.

A földszinti pihenő-komplexumban egy 11,5 x 3,5 x 1,7 m-es nagyságú motorosan nyitható-zárható feszített víztükrű medence található teljes gépészettel a vízkezeléshez, valamint egy optimálisan tervezett hővisszanyerő, medence szellőztető rendszerrel ellátva.
Ugyancsak itt található egy négy személyes gőzszauna cédrus visszahűtő medencével.

A villa kiépített elektromos teljesítménye 3 x 25 A.

A riasztórendszer teljesen kiépített , nem csak mozgásérzékelőkkel szerelt, hanem külön állítható a héjvédelemmel (nyitásérzékelők) ellátott. A rendszer a Pilis Securityhez bekötött.

A telefonhálózat és a központi TV hálózat védőcsövezéssel és vezetékezéssel csillagpontos kábelezési struktúrával készült.

Kert leírás:

A villa nagy kertje a modern és a romantikus kert ötvözete, amely az átgondolt térkialakításnak köszönhetően impozáns térérzetet kelt.

A modern kertekre jellemző nagy hatalmas zöldfelület, a nagy termő gyümölcsfák, a jól megválasztott szoliter növények és évelők rendkívüli nyugalmat árasztanak.

Az egzotikus és mediterrán bokrok és fák illata különösen öntözés után felejthetetlen pillanatokat szerez a kertben tartózkodóknak

A ház a nappali az étkező és a medence felől kapcsolódik egy hatalmas terasszal a kerthez.

A növények vízellátásáról a teljesen automatikus, tetszés szerint programozható Toro öntözőrendszer gondoskodik.

Fűtés-Hűtés leírás

A villa hőenergiáját a pinceszinten lévő kazánházba telepített 45Kw-os Buderus kondenzációs kazán biztosítja külön meleg-víztároló rendszerrel. Itt találjuk a ívóvízlágyító berendezést is..

A villa hűtési-fűtési rendszerét a rendkívül energiatakarékos fan-coil radiátorok és split klímák alkotják, amelyek egyben zajtalanul biztosítják a szűrt, temperált levegőt.

Telek méret megváltoztatatása

Amennyiben az új tulajdonos a mostaninál nagyobb kertet szeretne , akkor lehetősége van a szomszéd 1500 m2 nagyságú telek kedvező árú megvásárlására.

Így a telek mérete 3.800 m2-re növekedne.

Általános Iskolák

  • II. Rákóczi Ferenc Általános Iskola és Gimnázium
  • Agy Tanoda Magyar- Angol Két Tanítási Nyelvű Általános Iskola
  • Barcsay Jenő Általános Iskola
  • Dunakanyar Magániskola
  • Izbégi Általános Iskola
  • Szent András Általános Iskola
  • Templomdombi Általános Iskola

Gimnáziumok

  • II. Rákóczi Ferenc Általános Iskola és Gimnázium
  • Ferences Gimnázium
  • Móricz Zsigmond Gimnázium
  • Petzelt József Szakgimnázium
  • Református Gimnázium
  • Szakkay József Szakgimnázium
>

Értékelés

Külső
85%
Belső
90%
Kert
65%
Medence
90%
Fűtés
85%

Ingatlan képek

Térkép